
MILDTL28803/3D
NOTES:
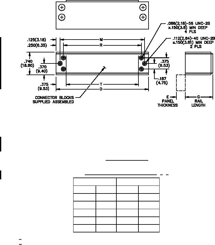
1. Dimensions are in inches. Millimeter equivalents are given for general information only.
2. Unless otherwise specified, tolerances are ±.02 inch (0.51 mm) for two place decimals and
±.010 inch (0.25 mm) for three place decimals.
3. Design configuration optional within envelope as shown.
4. The values for dimensions D, M, R, and T are listed in table III. The values for dimensions E and G
are listed in table IV.
FIGURE 3. Mounting rail assembly.
TABLE IV. Mounting rail assembly panel thickness. 1/ 2/
Dimension E
Dimension G
Inches
mm
Inches
mm
.063
1.60
1.05
26.7
.093
2.36
1.02
25.9
.125
3.18
.99
25.1
.190
4.83
.92
23.4
.250
6.35
.86
21.8
1/
Dimensions are in inches. Millimeter equivalents are given for general information only.
2/
Unless otherwise specified, tolerances are ±.02 inch (0.51 mm) for two place decimals and
±.010 inch (0.25 mm) for three place decimals.
4
For Parts Inquires call Parts Hangar, Inc (727) 493-0744
© Copyright 2015 Integrated Publishing, Inc.
A Service Disabled Veteran Owned Small Business